본문 바로가기

서브페이지 배너
구내식당 뒤편 창고 건축도면
성냥공장 문화재생사업이(가) 보유한 본 저작물은 "공공누리“
						제4유형:출처표시 + 상업적 이용금지 + 변경금지 조건에 따라 이용 할 수 있습니다.
작성자
관리자
작성일
2023-10-24
조회수
611
야외창고 단면도 A-A

야외창고 단면도 A-A

야외창고 단면도 B-B

야외창고 단면도 B-B

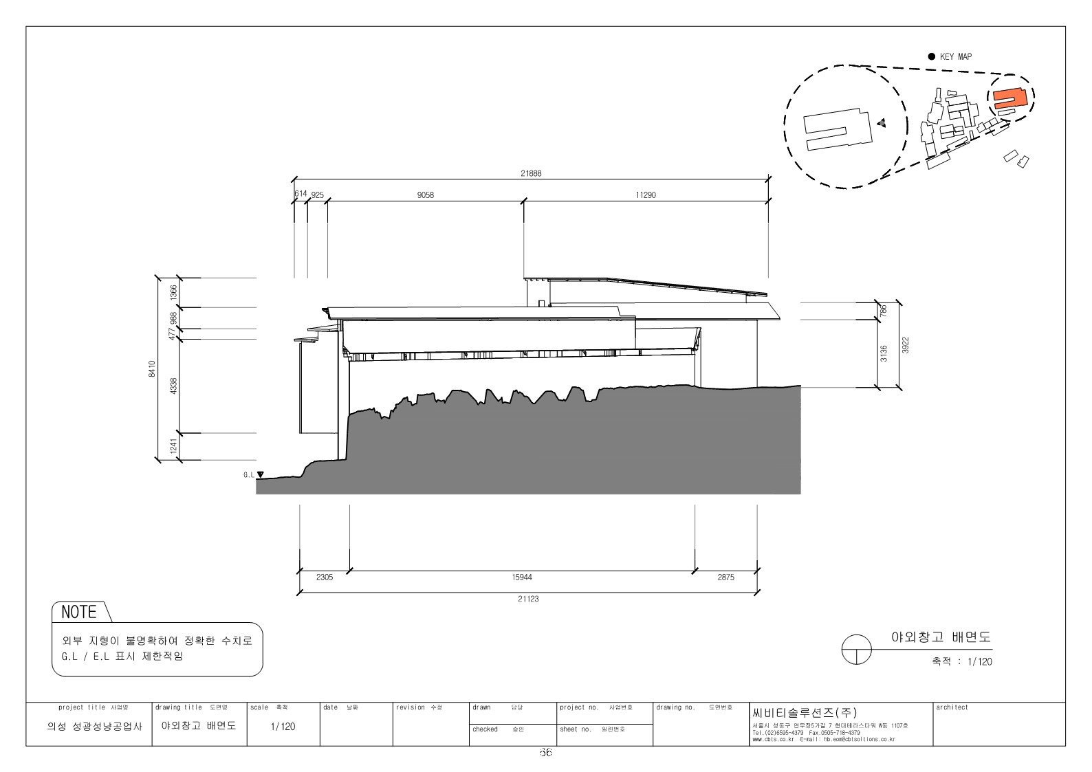
야외창고 배면도

야외창고 배면도

야외창고 우측면도

야외창고 우측면도

야외창고 정면도

야외창고 정면도

야외창고 좌측면도

야외창고 좌측면도

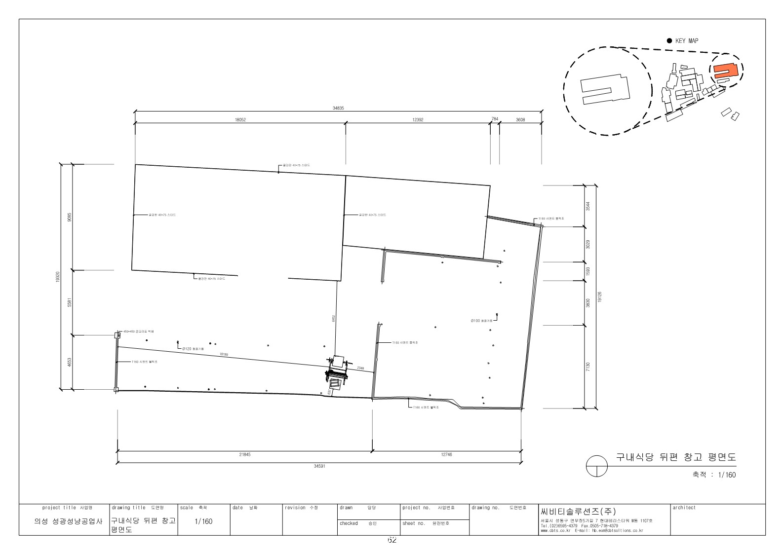
구내식당 뒤편 창고 평면도

구내식당 뒤편 창고 평면도

야외창고 단면도 A-A
단면도
야외창고 단면도 B-B
단면도
야외창고 배면도
배면도
야외창고 우측면도
우측면도
야외창고 정면도
정면도
야외창고 좌측면도
좌측면도
구내식당 뒤편 창고 평면도
평면도

내용

구내식당 뒤편 창고 건축도면 입니다.

360도

가상체험

사이버 공간

미리 경험해보는
온라인 가상체험

의성성냥공장 내부의 모습을 체험하 실 수 있습니다.
의성성냥공장 주변의 역사가 숨쉬는 현장을 로드뷰를 통해 직 간접적으로 체험하실 수 있습니다.
드론을 통해 직접 촬영한 항공사진으로 의성성냥공장의 이모저모를 다양한 각도로 감상하실 수 있습니다.